Objektart
Adresse
Objektdaten
Informationen
Ausstattung
Details
In gewachsener und familienfreundlicher Wohnlage von Oberhausen-Schmachtendorf befindet sich dieses Reihenendhaus aus dem Baujahr 1974 auf einem ca. 356 m² großen Grundstück.
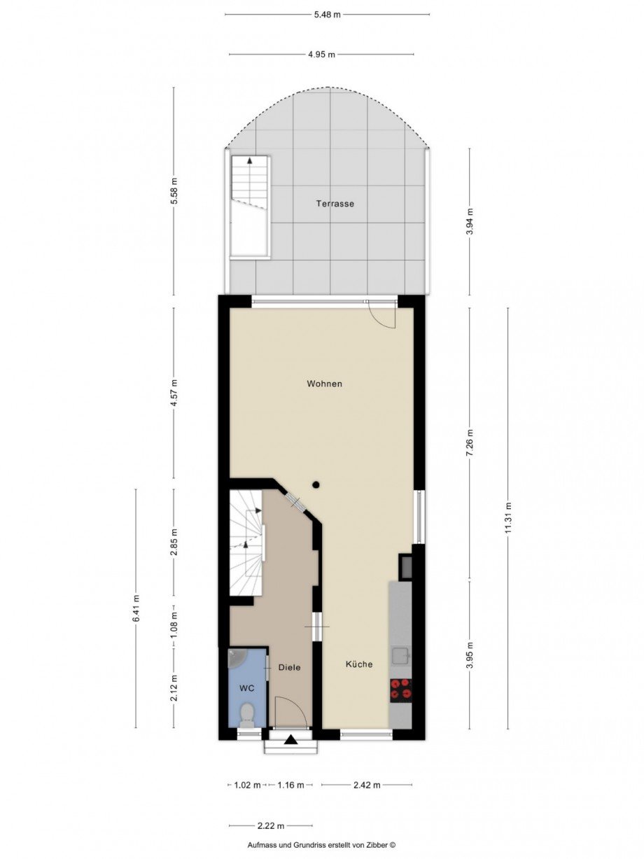
Mit einer Wohnfläche von rund ca.107 m² zzgl. zusätzlicher ca. 38m² Nutzfläche im ausgebauten Dachgeschoss bietet die Immobilie insgesamt fünf Zimmer und damit ein ideales Raumangebot für Familien mit Kindern. Die Aufteilung ermöglicht eine klare Trennung von Wohn- und Schlafbereichen sowie flexible Nutzungsmöglichkeiten, beispielsweise für ein Homeoffice oder ein zusätzliches Kinderzimmer.
Die Immobilie befindet sich in einem dem Baujahr entsprechenden Zustand und bietet eine solide Grundlage für Modernisierungsmaßnahmen nach eigenen Vorstellungen. Bereits erfolgte Investitionen - wie der Austausch der Fenster im Jahr 2012 sowie die Erneuerung der Gasheizung im Jahr 2000 - bilden eine gute Basis für die weitere Entwicklung des Hauses.
Eine Garage ergänzt das Angebot um eine praktische Parkmöglichkeit direkt am Haus.
Insgesamt handelt es sich um ein familiengerechtes Zuhause mit Potenzial in beliebter Wohnlage von Schmachtendorf - ideal für Käufer, die langfristig planen und sich den Wunsch vom eigenen Haus mit Garten erfüllen möchten
Erdgeschoss: Diele, Küche, Wohnzimmer, Gäste-WC, Terrasse, Garten
Obergeschoss: Schlafzimmer, Kinderzimmer, Kinderzimmer, Badezimmer mit Fenster
Dachgeschoss: Nutzfläche, ein Zimmer
Keller: vollunterkellert
Die Immobilie befindet sich in familienfreundlicher Wohnlage von Oberhausen-Schmachtendorf. Das Umfeld ist geprägt von überwiegend Ein- und Zweifamilienhäusern sowie einer gewachsenen Nachbarschaft mit ruhigem Wohncharakter.
Gerade für Familien mit Kindern bietet die Lage eine gute Infrastruktur: Kindergärten, Grundschulen sowie weiterführende Schulen sind im näheren Umfeld vorhanden und teilweise fußläufig oder mit dem Fahrrad erreichbar. Spielplätze und Sportangebote befinden sich ebenfalls in der Umgebung.
Einkaufsmöglichkeiten für den täglichen Bedarf, Supermärkte, Bäckereien und weitere Geschäfte sind in wenigen Minuten erreichbar. Auch Ärzte, Apotheken und weitere Einrichtungen des täglichen Lebens befinden sich im Einzugsbereich.
Die Anbindung an den öffentlichen Nahverkehr ist gut. Zudem sind die Autobahnen A2 und A3 in kurzer Fahrzeit erreichbar, wodurch eine schnelle Verbindung in die umliegenden Städte des Ruhrgebiets gewährleistet ist.
Insgesamt überzeugt die Lage durch eine ausgewogene Kombination aus ruhigem Wohnen, guter Infrastruktur und einem familiengerechten Umfeld.
Das Angebot ist freibleibend, die Flächen wurden nicht von uns durch ein Aufmaß vor Ort überprüft, Grundlage sind die uns vorliegenden Bauzeichnungen, Angaben des Eigentümers bzw. Auftraggebers und die Wohnflächenberechnung des Architekten. Alle Daten die das Objekt betreffen sind uns vom Eigentümer bzw. Auftraggeber mitgeteilt worden.
Für die Richtigkeit und Vollständigkeit der uns erteilten Auskünfte übernehmen wir trotz sorgfältiger Bearbeitung keine Gewähr.
Die Käufercourtage in Höhe von 3,57% auf den Kaufpreis einschließlich gesetzlicher Mehrwertsteuer ist bei notariellem Vertragsabschluss verdient und fällig.
Ansprechpartner
Mobil: +49 176 83018080
j.gredig@immo-marquardt.de
Energieausweis (Bedarfsausweis)
263,30 kWh / (m²*a) Endenergiebedarf
263,30 kWh / (m²*a) Endenergiebedarf
263,30 kWh / (m²*a) Endenergiebedarf
Weitere Informationen
| Wesentlicher Energieträger | Gas |
| Energieausweis Ausstelldatum | 2026-02-16 |
| Energieausweis gültig bis | 15.02.2036 |
| Energieausweis Jahrgang | ab dem 1.5.2014 |
| Energieausweis Werteklasse | H |
| Energieausweis Baujahr | 1974 |
| Energieausweis Gebäudeart | Wohngebäude |
| Heizung | Zentralheizung |
| Befeuerung | Gas |
Ich bin damit einverstanden, dass mir Karten von Google angezeigt werden. Es gelten die Datenschutzbedingungen von Google (https://policies.google.com/privacy).
Ich bin einverstanden